Vendita
Castellinaldo vendesi casa stile cascina indipendente
CASTELLINALDO (CN)
€ 189.000
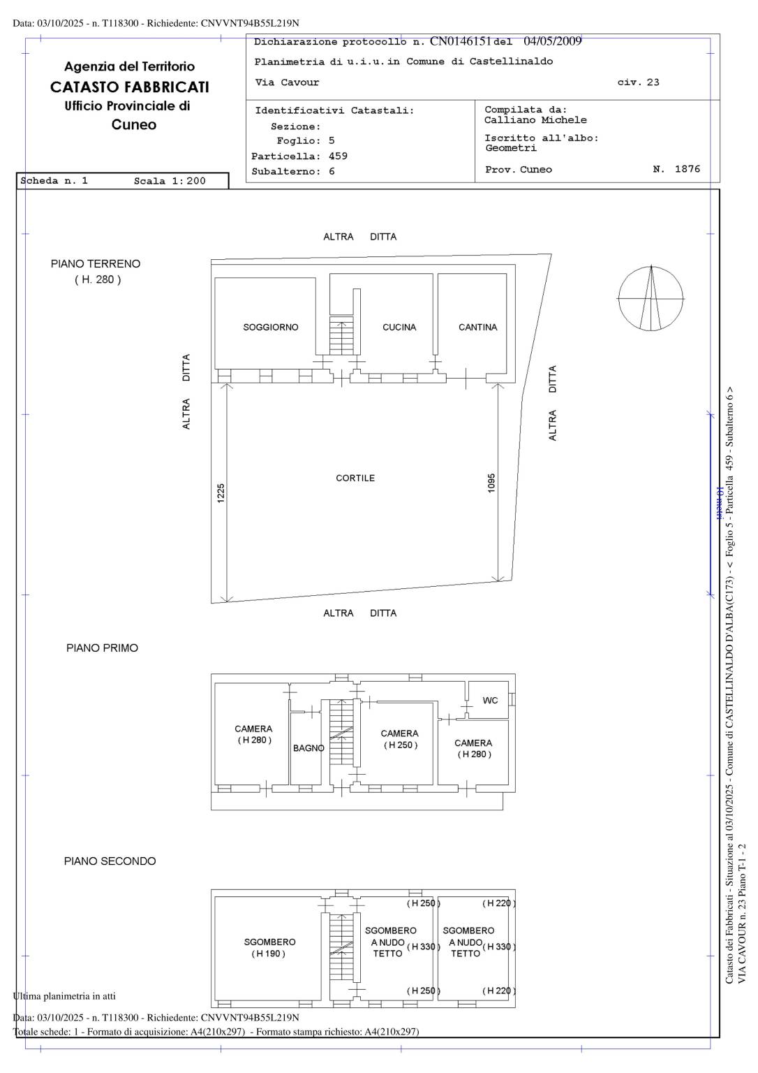
Castellinaldo nel centro del paese a 12 km da Alba proponiamo in vendita tipica cascina piemontese ristrutturata negli anni 80 rendendo l'immobile adeguata ai confort di vita odierna. La casa disposta su tre piani si compone con la zona giorno al piano terreno con ingresso, ampio soggiorno con tipice volte a vela in mattoni vecchi sabbiati a vista che rispecchiano lo stile tipico della zona, una cucina di generose dimensioni e un locale di circa 20 mq. adibito a garage e magazzino: servito da una comoda scala abbiamo la zona notte con tre camere letto e due bagni e un balcone; al piano superiore ci sono tre locali grezzi che potrebbero essere trasformati in locali abitativi per creare altri spazi a disposizione della casa come studioli, palestre ecc. Il tetto rifatto negli anni 90 si presenta in ottime condizioni; la caldaia a metano recentemente sostituita.
Le sue generose dimensioni rendono l'abitazione comoda anche a famiglie numerose o anche per chi voglia condividere la casa in due famiglie.
Completa la proprietà un cortile interno con piccole aree verdi totalmente recintato con comodo cancello privato.
Le sue generose dimensioni rendono l'abitazione comoda anche a famiglie numerose o anche per chi voglia condividere la casa in due famiglie.
Completa la proprietà un cortile interno con piccole aree verdi totalmente recintato con comodo cancello privato.
Contratto Vendita
Rif V101
Prezzo € 189.000
Provincia Cuneo
Comune Castellinaldo
Indirizzo Via Camillo Benso di Cavour 29">
Vani 5
Camere 3
Bagni 2
Classe energetica
F (DL 192/2005)
EPI 175 kwh/m2 anno
Riscaldamento autonomo
Condizioni abitabile
Anno di costruzione 1950
Cucina abitabile
Consistenze
| Descrizione | Superficie | Sup. comm. |
|---|---|---|
| Principali | ||
| Immobile - piano terra | 90 Mq | 90 Mqc |
| Immobile - 1° piano | 90 Mq | 90 Mqc |
| Mansarda - 3° piano | 70 Mq | 70 Mqc |
| Totale | 250 Mqc | |































































Zoom della mappa
Apri con:
Apple Maps
Google Maps
Waze
Apri la mappa






